estateNowak

Nieruchomości na wynajem i na sprzedaż.

550.000zł



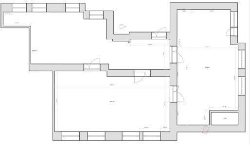
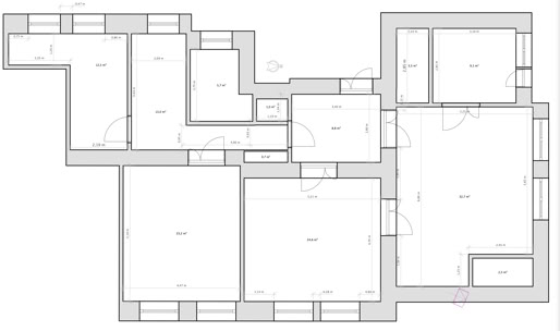
Mieszkanie obecnie podzielone na dwa mniejsze pod wynajem, jest jedna księga wieczysta.


Dwie łazienki, dwie kuchnie, dwa piece gazowe C.O. Większość okien wymienionych na SCHUCO.

W mieszkaniu są dębowe parkiety.

Mieszkania nadają się do zamieszkania, instalacje C.O są sprawne i maja przeglądy.

W budynku jest wspólnota mieszkaniowa.

Koszty funduszu remontowego, oraz opłaty eksploatacji to łącznie 3,80 zł/m2/mc

Wysokość +-310cm

Mieszkanie jest bardzo dobrze skomunikowane.

Co 20 minut tramwaj do łodzi - przystanek bezpośrednio przy budynku - Do Portu Łódź można się dostać w porównywalnym czasie jak samochodem. (10-15 min)

W budynku na parterze klimatyczna restauracja nie mająca wpływu na mieszkanie.

W bardzo bliskiej odległości Prokuratura, kościół, Żabka(150m), Biedronka (400m),

Współwłaściciele - same przyjazne i normalne osoby, brak konfliktów.


W jednym mieszkaniu można zamieszkać i drugie wynajmować - w ten sposób spłacać sobie część kredytu, lub można połączyć całe mieszkanie w jedno duże i po remoncie ekskluzywne.


Elektryka - wszystko działa, ale ma swoje lata.

Piony kanalizacyjne wymienione na plastikowe.

Budynek zadbany, dozorca, domofon, brama na pilota - nie ma miejsca parkingowego (Jest możliwość wynajęcia garażu za dodatkową miesięczną opłatą na posesji, lub dla małego auta w budynku obok w parkingu podziemnym.